CỬA THỦY LỰC + VÁCH NHÔM KÍNH

VÁCH MẶT DỰNG

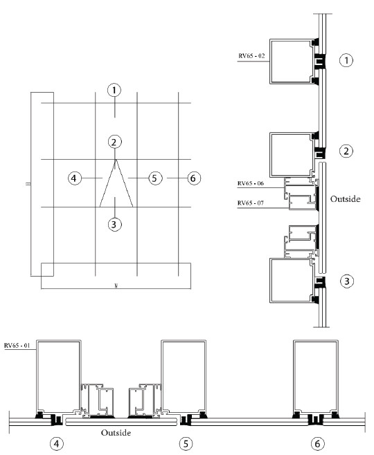
đơn vị sản xuất thi cong vách mặt dựng tại Bắc Ninh

đơn vị sản xuất thi cong vách mặt dựng tại Bắc Ninh

Vì sao chọn Chúng tôi?
Uy tín thương hiệu luôn được đặt lên hàng đầu...

Hệ thống Nhà xưởng
Hệ thống nhà xưởng quy mô, máy móc hiện đại. Tạo ra được các sản phẩm cửa tinh tế và chuẩn xác.

Đội ngũ Kỹ thuật
Đội ngũ Công nhân tay nghề cao, có nhiều năm kinh nghiệm trong nghề...

Đặt hàng ngay
Hãy gọi ngay: 0986366832 Nhân viên của Chúng tôi sẽ tư vấn chi tiết cho Bạn.

Hãy gọi cho Chúng tôi để được tư vấn 0986366832